白金會員
已認證
如何解決離心機脫水后物料的自動化輸送?
離心機脫水后物料的輸送方式,可采用如:管鏈輸送機、螺旋輸送機、皮帶式輸送機或人工 搬運等多種輸送方式。 首先,根據需方自己的工藝來選擇離心機的脫水方式。化工行業常用的離心機有如下幾款:
1、立式刮刀離心機

2、臥式刮刀離心機

3、拉袋式離心機

目前在中國提倡節能環保、安全生產卻又勞動力緊缺的前提下,如何解決以上三種離心機脫 水后的物料自動化輸送,成了化工、醫藥、新材料、農業等各大行業最為關切的問題。 而在此時,弗格森輸送機械(常州)有限公司(孫總:13515269469)在解決離心機脫水后 物料的自動化輸送的問題上,公司研發的輸送設備無論是在技術上,還是在行業內的口啤上, 都取得了傲人的成果。 因此,公司決定將我們的成果整理出來,分享給其它有需求的行業或同行企業等。
一、選擇立式刮刀離心機時,用戶是根據自身的產能來匹配相應臺數的機器,一般為 2 臺、 15 臺或者更多的臺數。為了能夠實現自動化生產以及操作場地的美觀,離心機的布置方式 可采取成排或者矩形的方式來布置。離心機脫水后的物料含水率是由批次時間、設備能力來 決定的(一般在 3%和 15%之間),因此離心機設備本身的問題,或者操作不當等問題都會導 致母液流至下層設備中。母液中如含有易燃、易爆和毒性氣體,此時就必須要考慮密閉輸送。
二、選擇臥式刮刀離心機時,用戶可根據車間高度和工藝要求,選擇 1 臺或 10 臺設備,并 布置成一字型。選擇此款離心機時,前期設計必須要考慮到出料口的離地高度,后續自動化 輸送才好對接,很多項目的改造,多半因為離地高度而受到了限制。物料脫水后,因含水率 發生了變化,離心機中的物料有時則會呈現結塊狀。母液中如含有易燃、易爆和毒性氣體, 此時就必須要考慮密閉輸送。
三、選擇拉袋式離心機時,因為環保、勞動力緊缺、市場需求量小,用戶選擇此類設備已逐 年減少。但因特殊工藝要求,又或從投入成本上考慮,依然有企業會選拉袋式離心機的脫水 方式,效率高,產能大。但此款離心機的后續物料輸送,多數采用料桶人工搬運,因此只能v> 適用于人工成本低、環保要求低的國家和地區。 如何解決離心機物料脫水后的自動化輸送,選擇什么樣的輸送方式成了用戶的一個大難題。 而如果你選擇咨詢弗格森輸送機械(常州)有限公司(孫總:13515269469),公司會根據 用戶的實際情況給你推薦不同的輸送設備。 根據各種輸送方式的利與弊,一般會推薦以下幾種輸送方式:
1、料桶、噸袋或手拉車輸送 此輸送方式簡單、設備投入成本低,但弊端是輸送現場環境臟亂差,母液散發出刺激性氣味, 嗆鼻、辣眼,長期在此環境下工作會嚴重危害到人體健康。在人口紅利即將消失,而習主席 又大力提倡“綠水青山就是金山銀山”的環保理念政策下,此輸送方式極不可取

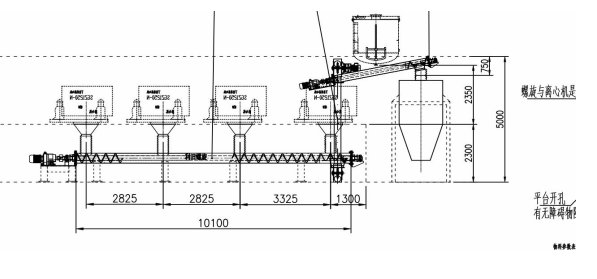
2、螺旋輸送機收集
此輸送方式成熟,布置簡單。但弊端在于:密封性差、含水率高時物料粘性強,會堵料,會 粘在螺旋主軸上、葉片之間,且輸送距離有限,布置不靈活,螺旋主軸內殘留量大。 針對這種輸送方式,一般可用于單獨離心機或者有層高的輸送項目上。

3、皮帶輸送機
此輸送方式與螺旋輸送一樣,成熟穩定,比螺旋輸送距離長。但弊端是,密封性差,無法處 理母液的排放、無法處理隔爆充氮等問題,輸送環境上甚至比料倉輸送環境還要更差,因此, 已經幾乎沒有企業選用這種輸送方式

4、管鏈輸送機收集
此類輸送方式是目前絕大多數客戶的首選方式。此方式優點是:設備運行平穩、靈活、輸送 距離長,能更好的解決在物料收集和輸送過程中的密閉、隔爆、充氮、不堵料等問題。

弗格森輸送機械(常州)有限公司成立于 2014 年,是一家專注于粉體物料拆包、輸送、計 量配料、離心物料收集的專業型企業。截止到 2021 年 7 月底,公司現有員工 85 人,其中本 科以上學歷的專業技術人才 25 人,生產人員 48 人,各類專業生產設備齊全。公司秉承優秀 的物料處理理念和技術,秉承 10 多年來專業、敬業、精業的服務理念,為用戶提供真摯的 服務和全世界性價比最優的物料處理系統。
公司地址:江蘇省常州市鐘樓區松濤路 58 號
聯系人:孫先生 電話:13515269469
網址:www.czfgs.com 郵箱:2851677050@qq.com


